Sold

325 Beverley Drive, Alexandria, VA 22305

$1,225,000 Beverley Hills Request More Info

Property Description

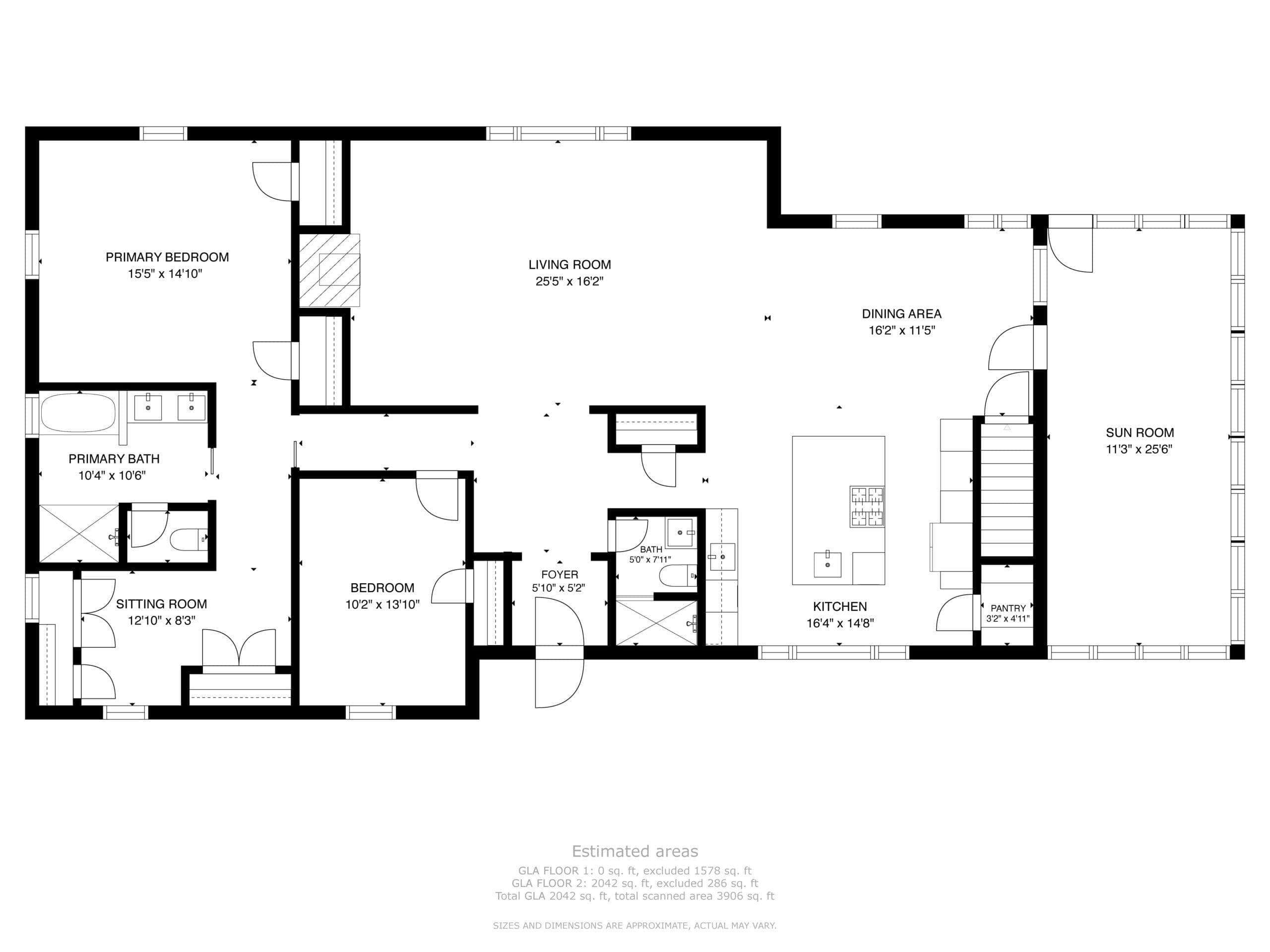
Beverley Hills, nestled in Alexandria City, is a neighborhood known for its scenic backdrop and 325 Beverley Drive showcases this setting perfectly with an unexpected degree of privacy. This beautiful rambler-style home is set on a sunny 1/3 acre lot, surrounded by lush greenery offering exceptional views of Monticello Park’s woodlands.  Everyday living is easy with an open layout.  The living room, dining room, and kitchen flawlessly come together. Classic elements are found throughout these main living areas such as hardwood floors, crown molding, and recessed lighting. The living room is bookended on one side by built-in glass shelves surrounding a marble-covered fireplace and on the other side of the dining room is a large Sunroom, surrounded by tall windows as if cradled in the treetops. All rooms are filled with an abundance of natural light offering fiberglass double pane windows with scenic views and year-round enjoyment. Two bedrooms on the main level offer a one-level living scenario establishing this residence as a forever home. A true Chef’s kitchen boasts high-end appliances, a gas range and double ovens, floor-to-ceiling cabinets, generous storage/pantry space, an extra-large island, and a wet bar with a built-in under-counter beverage refrigerator. The Primary bedroom suite, separated from the main living area by a pocket door, is a lovely retreat and features an ensuite bath with a walk-in shower, soaking tub, and beautiful vanity with granite countertop and walk-in closet dressing area.  The fully finished lower level rec room includes an office,  exercise area, clean utility room, and a third bedroom and full bath. Outdoor notable features include an extra-wide slate walkway that leads to the front porch, a patio for entertaining, a partially heated driveway to melt snow/ice, a large one-car garage, and a parking deck sufficient for parking 3 cars comfortably. Centrally located with close proximity to two metro stations, Washington DC, Tysons Corner, Old Town, Shirlington, Del Ray, and major interstate access.

Property Type:

Rambler

Bedrooms:

3

Bathrooms:

3

Neighborhood:

Beverley Hills

Parking:

Driveway + 1 Car Garage

Property Type:

Rambler

Bedrooms:

3

Bathrooms:

3

Neighborhood:

Beverley Hills

Parking:

Driveway + 1 Car Garage

Sell With Confidence

See how we help you make the sale of a lifetime, with tailored listing plans and a full-service strategy.